Lock-Hansen sagen 1967. Gerningsstedet

Danmarks næststørste kriminalsag, der ALDRIG officielt skal opklares.

Sag nr. N 287/1967, Århus Kriminalpoliti

Hvad skete der: 1967 og frem

Marie Lock-Hansen

Oscar Lock-Hansen


Dines Bogø
184 kvm stueplan. 115 kvm underetage. 35 kvm uudnyttet krybekælder.
Dines Bogø
Fotomontage 23. april 2005. Hestehavevej 2B i Højbjerg. I baggrunden i skoven skimtes militære antennemaster. (Originalfotos: Flemming Jensen, Århus).
Dines Bogø
Kontoret, hvor Marie Lock-Hansen blev skudt.
Dines Bogø
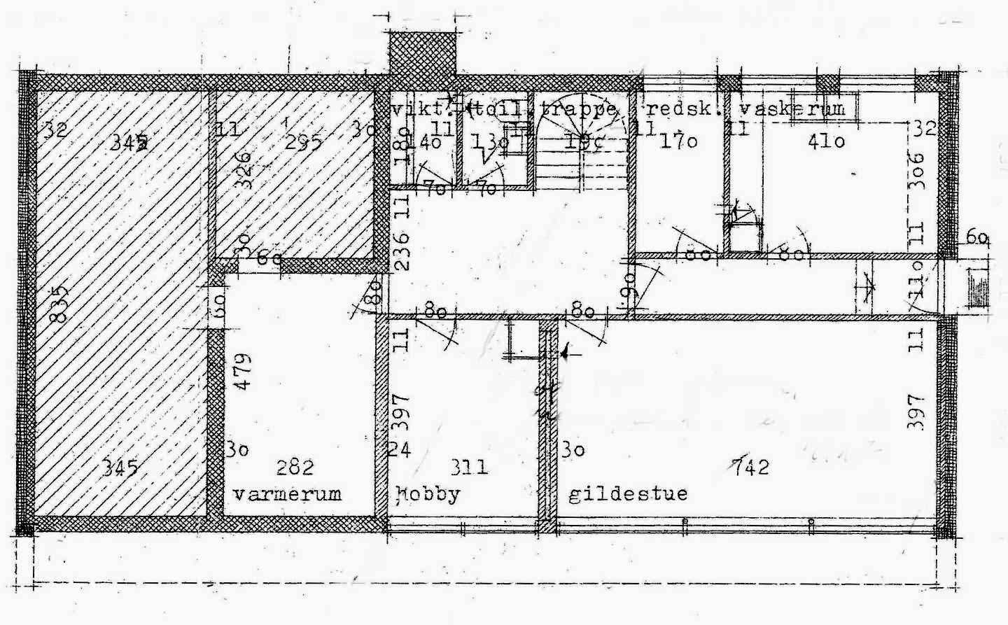
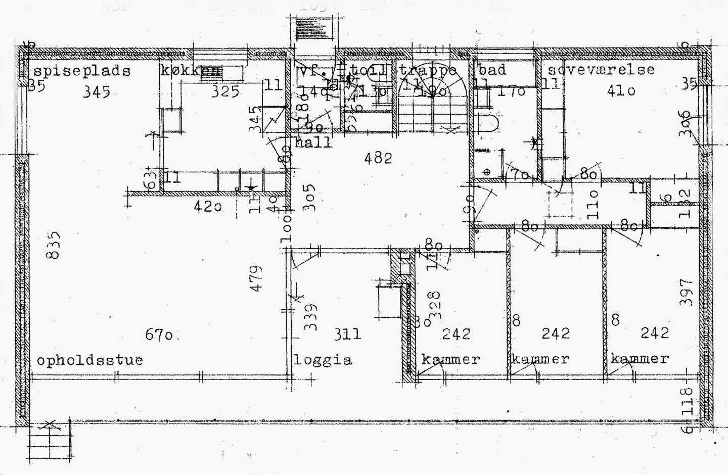
Stueetage. Hestehavevej 2B. Villaen er opført i 1959-1960.
Dines Bogø
Underetage. Hestehavevej 2B.
Dines Bogø
Ca. 1991
Dines Bogø
Politiet ville ikke offentliggøre den skitse man havde lavet over parkerede biler i området om formiddagen den 10. november 1967. Her er en skitse fra Århus Stiftstidende af gerningsstedet dagen efter drabet.
Dines Bogø
Marie Lock-Hansen og Irma Rasmussen sad i dagligstuen fredag den 10. november 1967 kl. 10.50, da der blev ringet på døren.
Dines Bogø
Kontoret, hvor Marie Lock-Hansen blev skudt. Hvorfor blev døren mellem det lille kontor og hall lukket, hvis det drejede sig om en kort samtale med en såkaldt uanmeldt ukendt repræsentant?
Dines Bogø
Kontoret, hvor Marie Lock-Hansen blev skudt. Man ved ikke om det var fru Lock-Hansen eller gerningsmanden, der lukkede døren.
Dines Bogø
Hallen, hvor Irma Rasmussen blev skudt. Hun blev alvorlig såret, men hurtig hjælp og operation reddede hende.
Dines Bogø
I kælderen havde Marie Lock-Hansen et mindre duplikeringsbureau "Rolock".
Dines Bogø
Kælderen. Firmanavnet er en sammentrækning af efternavnene Rode og Lock-Hansen.
Dines Bogø
I kælderen arbejdede medhjælperen Lizzie Christensen. Hun boede ca. ½ km fra gerningsstedet på Egebæksvej. Hun havde kun hjulpet til ca. en måned.
Dines Bogø
Trappe fra kælderen hvor Lizzie Christensen stod. Hun kaldte op til Irma Rasmussen, der bad hende kalde "Hjælp".
Dines Bogø
Ambulancefolk fik en kraftig reprimande, da stationslederen så i aivsen, at de havde glemt at tæppet over afdøde.
Dines Bogø
Ambulancefolk fra Falck-Zonen bærer liget af Marie Lock-Hansen ud fra villaen. (Avisfoto).
Dines Bogø
BT 1997.
Dines Bogø
BT 1997.
Dines Bogø
BT 1997.
Dines Bogø
17. maj 2005. Østgavl af Hestehavevej 2B ud mod Oddervej op mod Kirkeskoven. Villaen var indrettet med omtanke. Ingen naboer ville opdage, hvis gæster kom ind ad hoveddøren på nordsiden af huset op mod skoven eller ad døren i østgavlen ud mod Oddervej.
Dines Bogø
Op mod skoven ligger "forsiden" (nordsiden) af huset. Foto fra gerningstidspunktet.
Dines Bogø
17. maj 2005. T.h. Hestehavevej 2B set mod syd ad Oddervej.
Dines Bogø
Hestehavevej 2B ligger i den nordlige ende af den østligste stikvej. Stikvejen kaldes af lokale "Hestehalen". (Foto: Flemming Jensen, Århus).
Dines Bogø
Hestehavevej 2B i Højbjerg.
Dines Bogø
Hestehavevej 2B i Højbjerg. Sydsiden med loggiaen. Man kan tydelig se, at den vestlige del af kælder ikke er udgravet.
Dines Bogø
22. februar 2008. Den åbne loggia mellem stuen og kontoret, som Irma Frier Rasmussen kravlede ud på, blev lukket for en del år siden.
Dines Bogø
Villaen i Højbjerg ligger meget tæt på 4 tyske bunkere, hvor dansk militær også i 1967 (i koldkrigsperioden) havde installationer. (Oplysning om placering af de oprindeligetyske anlæg er modtaget af Flemming Jensen, Århus).
Dines Bogø
Villaen i Højbjerg, markeret med en lille hvid pil, ligger i sydskellet af "Kirkeskoven". I forgrunden th ligger den kirkegård, hvor Marie Lock-Hansens urnegravsted lå i 10 år.

Villaen var til salg juli 2007 for 6½ mill. kr. Et arkitektonisk flot hus i kvalitetsmaterialer skrev ejendomsmægleren. Huset blev solgt på under 1 måned til overtagelse pr. 1. januar 2008.

Marie Lock-Hansens kontor på 8 kvm., hvor hun blev skudt, er nu sammenlagt med et andet kammer på 10 kvm. Kælder er uforandret og ca. 35 kvm er stadig ikke udgravet, men kun krybekælder.

Dines Bogø
10. november 2007. I forgrunden de nye ejere, der overtog huset januar 2008. I baggrunden TV2 Østjyllands direktør Peter Kramer i samtale med Dines Bogø. (Foto: Jørgen Diswal).

22. februar 2008. TV2 Østjylland var af de nye ejere inviteret sammen med mange andre på besøg i villaen Hestehavevej 2B.

Dines Bogø
Der blev lavet optagelser bl.a. med de clairvoyante Solvej Else Hansen og Steen Krarup. (Fotos: Dines Bogø).
Dines Bogø
Hestehavevej 2B. Exteriør. Tryk på foto. Mange ældre og nye vinkler på den 40 år gamle sag blev drøftet. (Fotos: Jørgen Diswal).
Dines Bogø
Hestehavevej 2B. Interiør. Tryk på fotos Mange ældre og nye vinkler på den 40 år gamle sag blev drøftet. (Fotos: Jørgen Diswal).
Dines Bogø
Hestehavevej 2B. Indbudte gæster. Tryk på foto. Mange ældre og nye vinkler på den 40 år gamle sag blev drøftet. (Fotos: Jørgen Diswal).